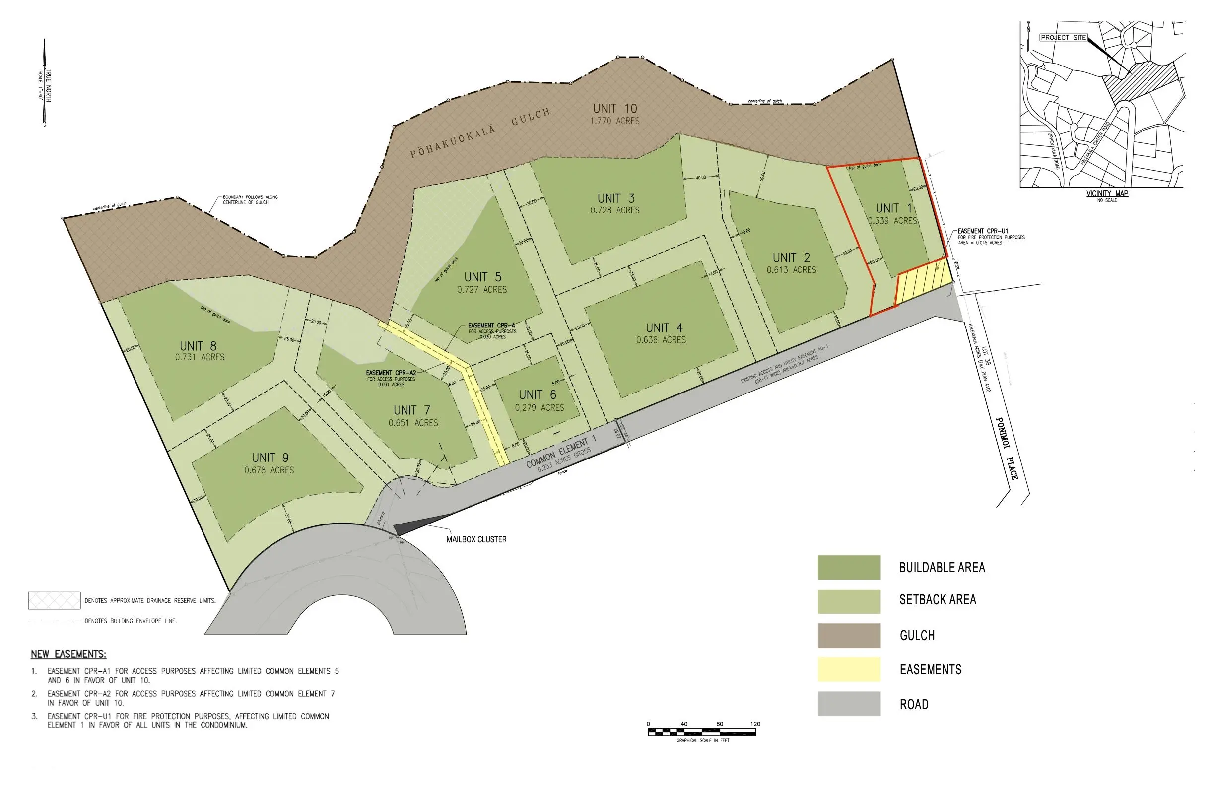
Unit 4 At Pohakuokala Views Is A 0.64-acre Main...
$695,000 Active Fee Simple
- 0.64 Acres
Land
0 Haleakala Hwy Unit 4, Kula/ulupalakua/kanaio, HI
MLS® #407891
Listed By: West Maui Land Company Inc
Unit 4 At Pohakuokala Views Is A 0.64-acre Main House Homesite Positioned Along The Upper Rise Of The Cpr, Giving It Elevation, Privacy, And Protected Bi-coastal, Three-island Ocean Views Stretching From Lana‘i To Moloka‘i. The Land Is Predominantly Level W...















