4335 Melianani Pl Lot 18, Wailea/Makena, 96753

SOLDLand - Unimproved Land For Sale in Wailea Highlands

$2,400,000

Beds
Baths
Sqft
.46Acres
Built
430DOM
MLS® #: 403564
Closed, 430 Days on Market

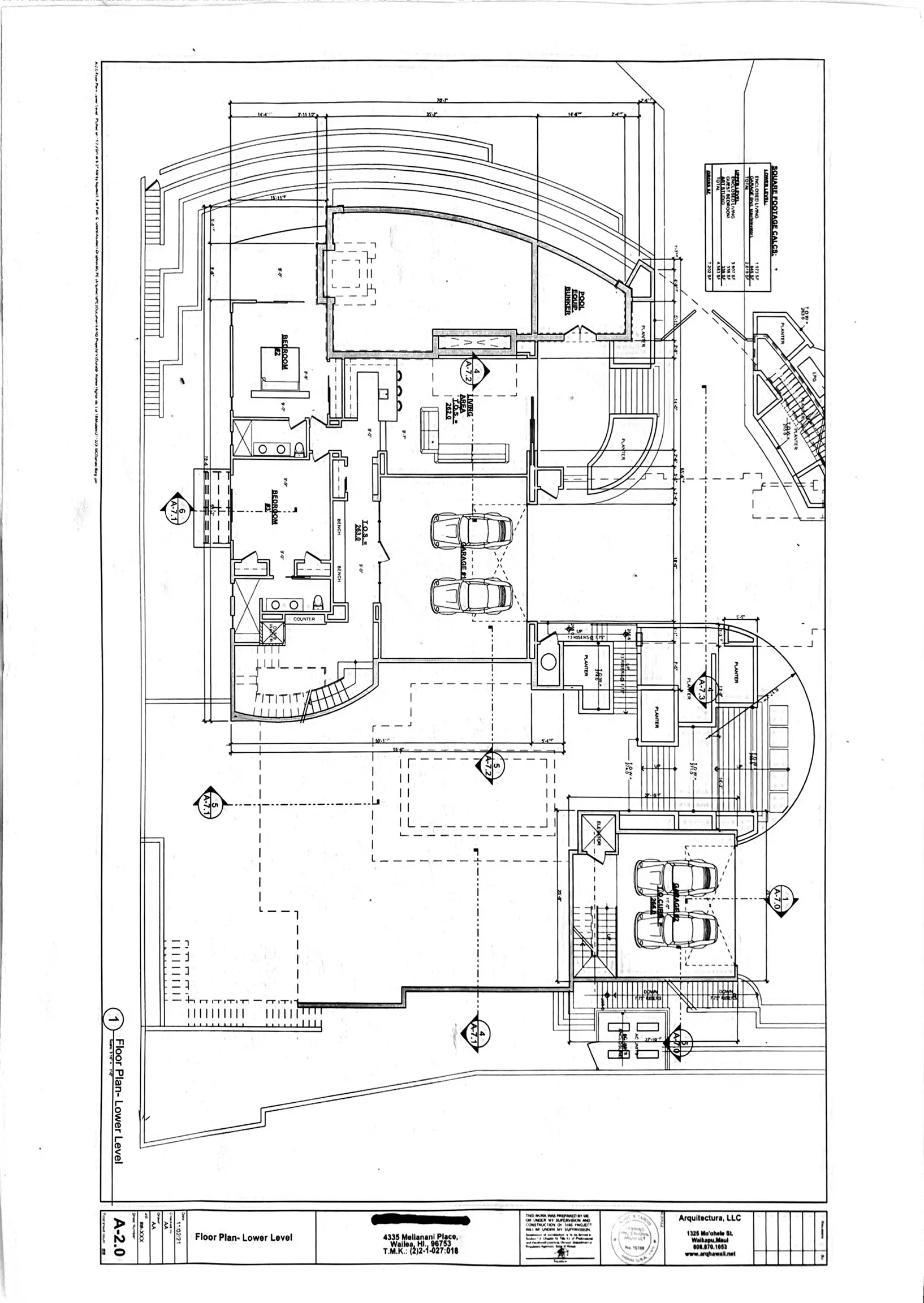
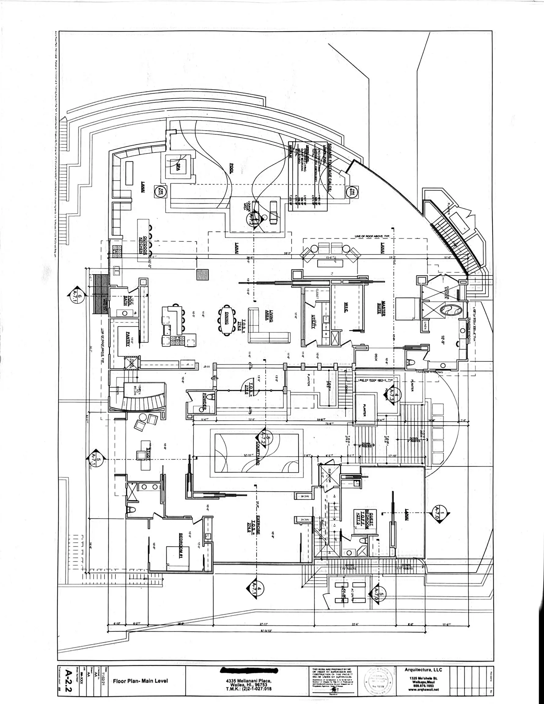
Presenting one of the last opportunities to build your dream home in Wailea's most prestigious and exclusive gated communities. With only 22 estate-sized parcels, each spanning a minimum of half an acre, Wailea Highlands is home to some of the finest architectural masterpieces in Wailea. 4335 Melianani offers a rare blend of privacy, luxury, and breathtaking views stretching from Makena to Wailuku. Conveying with the sale are ready-to-submit architectural plans for a 6 bed, 6 full and two half bath residence with 6558 sq ft of living space, designed by renowned Maui architect Marc Taron of Arquitectura, LLC. Photos are renderings of the home designed for this lot. Wailea Highlands invites an unparalleled lifestyle with access to endless outdoor activities and near to world-class golf courses, resorts with their luxurious spas, and the Shops at Wailea. And some of Maui's most beautiful beaches are just minutes away. Wailea Highlands HOA fee is $734.10/month and the bi-annual WCA fee is $311.75. This premier property comes with a Maui County water meter in place, making it ready to fulfill your vision of luxury living in one of Wailea’s most coveted settings. Don’t miss the chance to build your dream estate in this extraordinary location.

Essential Information

MLS® #: 403564
Price: $2,400,000
Acres: 0.46
Type: Land
Sub-Type: Unimproved Land
Land Tenure: Fee Simple
Status: Closed

Community Information

Address: 4335 Melianani Pl Lot 18
Area: Wailea/Makena
Subdivision: Wailea Highlands
City: Wailea/Makena
State: HI
Zip Code: 96753

Amenities

Utilities: Sewer Available
View: Mountain/Ocean
Waterfront: None

Exterior

Lot Description: Steep Slope

Additional Information

Listed By: Real Broker LLC
Date Listed: September 27th, 2024
Days on Market: 430
Zoning: Residential
HOA Fees: 734
HOA Fees Freq.: Monthly

Properties for Sale Similar to 4335 Melianani Pl Lot 18, Wailea/Makena, HI

Located Near Wailea Golf Vistas And The Hotel W...

SOLD Photo of Listing #399479

$1,800,000 Closed Fee Simple

  • 0.49 Acres

Land

4362 Melianani Pl Lot #5, Wailea/makena, HI

MLS® #399479

Listed By: Coldwell Banker Island Prop(S)

Located Near Wailea Golf Vistas And The Hotel Wailea, This Luxury Subdivision Is One Of The Finest Residential Offerings In Wailea. The Gated Community Has 24 Homes Sites, Each Roughly A 1/2 An Acre. This 21,719 S.f. Lot, Is Level And Has The Ability To Bui...

This information is believed to be accurate. It has been provided by sources other than the Realtors Assoc. of Maui and should not be relied upon without independent verification.


You should conduct your own investigation and consult with appropriate professionals to determine the accuracy of the information provided and to answer any questions concerning the property and structures located thereon.


Featured properties may or may not be listed by the office/agent presenting this brochure. Copyright, 1995-2015, REALTORS® Association of Maui, Inc. All Rights Reserved.